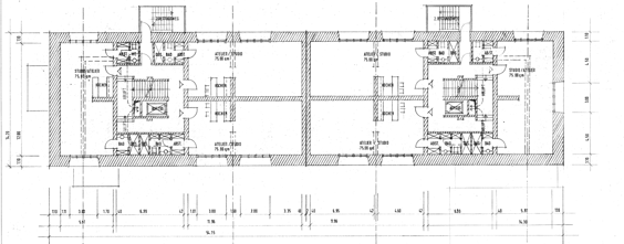
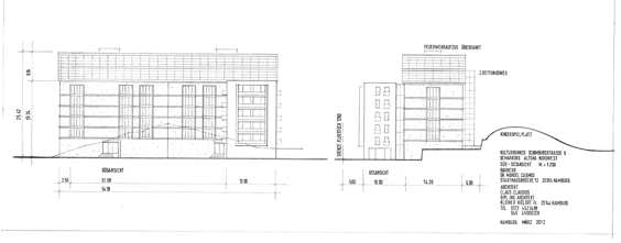
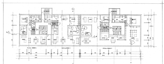
Architektur: Die Architektur des Gebäudes wird modernisiert und harmonisch in die Umgebung eingebettet. Die Fassade soll restauriert werden und optisch durch große raumhohe Fenster und eine anspruchsvolle und innovative Bepflanzung gestaltet werden. Es werden zwei gläserne Stockwerke aufgesetzt und ein Wohnhaus mit Sozialwohnungen und Cafè angebaut. Insgesamt entstehen 30 Wohnateliers, 2 Proberäume für Musiker, 1 Jugendclubraum, 1 Museumsbereich, 6 große Neubauwohnungen und 15 neue Sozialwohnungen.
Fertigstellung ist im Herbst 2013.
Beispiel: Begrünte Fassade